기술지원 > QnA

PADS 제품에 대해서 자세히 알고 싶은가요? 사용 중에 궁금한 점이 있으신가요?
Support를 통해서 도움을 받으세요.
PADS 제품에 대한 문의와 사용상의 질문에 대한 답변을 드리고, 사용 동영상 강좌 등의 유용한 정보들을 제공해 드립니다.


동일 노드에서 net name을 다르게 설정

페이지 정보

2026-04-28 15:22  |  Posted By 안종수

본문

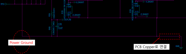
첨부드린 사진과 같이

입력단 GND를 Power GND로 따로 분리하고

그 뒤에 나오는 Digital GND는 동전위이기 때문에 PCB 내층에서 GND Copper로 연결하려고 합니다.

 

회로도에서 동일 노드라 GND가 따로 설정이 되지 않는데

동일 노드에서 net name을 다르게 설정할 수 있나요?

Comments

ED&C님의 댓글

ED&C  |

안녕하세요,
이디앤씨입니다.

문의주신 GND 분리 및 Net 설정과 관련된 내용은 Net Bridging 기능을 통해 처리할 수 있습니다.
아래 링크를 참고하시면 설정 방법을 확인하실 수 있습니다.
pads.co.kr/bbs/board.php?bo_table=faq&wr_id=19

감사합니다.


제품 문의
제품에 대한 견적이나 자료를 요청하고 기타 문의 사항을 주실 수 있습니다.
제품문의
기술지원